Indledning
En vigtig forudsætning for, at Kalundborg kommune fortsat udvikler sig positivt og bæredygtigt er, at fastholde eksisterende borgere og tiltrække nye.
Med udgangspunkt i kommuneplanens mål om at sikre flere boligformer, der opfylder nutidige ønsker til størrelse, pris, kvalitet, beliggenhed og ikke mindst mulighed for fællesskab, har Kommunalbestyrelsen besluttet, at der skal udarbejdes en ny lokalplan for et nyt boligområde i den østlige del af Kalundborg.
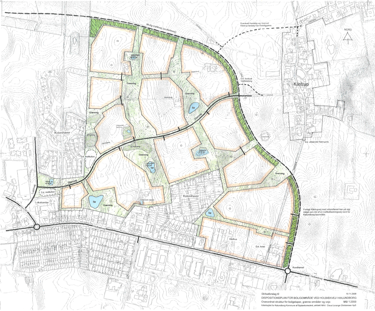
Lokalplanen udgør en del af et større byudviklingsområde, hvis overordnet struktur er fastlagt gennem en dispositionsplan. Det er tanken at udvikle et grønt byområde på grundlag af områdets eksisterende terræn, bevoksning og vådområder.


Dispositionsplan fra Kalundborg Kommuneplan
Om lokalplaner
Hvad er en lokalplan?
En lokalplan er en samling detaljerede bestemmelser, der gælder for et lokalområde i kommunen. Det kan typisk være en bydel, et lokalt afgrænset område og i nogle tilfælde blot en enkelt ejendom.
Lokalplanens indhold
Lokalplanen fastsætter forskellige bindende bestemmelser for grundejere, lejere og brugere af området. Det drejer sig hovedsageligt om regulering af den fremtidige arealanvendelse og regulering af den fremtidige bebyggelse på de enkelte ejendomme. Det vil sige, om der må bygges boliger, erhverv, offentlige institutioner, hvor der må bygges, hvordan bebyggelsen skal se ud, eller om der eventuelt slet ikke må bebygges.
En lokalplan kan tillige indeholde bestemmelser om vej-, sti- og parkeringsforhold og eventuelle forudsætninger for at tage ny bebyggelse i brug. Det kan eksempelvis dreje sig om udført kloakering, tilslutning til fællesanlæg eller etablering af fælles opholds- og parkeringsarealer.
Eksisterende lovlig anvendelse
Tilvejebringelse af en lokalplan medfører ikke forbud mod fortsættelse af eksisterende lovlig anvendelse af en ejendom. Men hvis en ejer, lejer eller bruger af en ejendom ønsker at ændre de eksisterende forhold må dette ikke ske i strid med lokalplanen.
En lokalplan er således ikke en handlingsplan, der medfører handlepligt for grundejerne. Af samme grund kan man ikke se af planen, hvornår en given foranstaltning gennemføres.
Lokalplanpligt
Kommunalbestyrelsen har pligt til at udarbejde en lokalplan inden et større byggeri, anlægsarbejde eller udstykning sættes i gang. Hensigten med denne pligt er at sikre større sammenhæng og offentlighedens kendskab til den kommunale planlægning. Overførsel af arealer fra landzone til byzone sker også ved en lokalplan.
Derudover kan Kommunalbestyrelsen skønne, at der er behov for at udarbejde en lokalplan for et givent område, fx for at løse nogle konkrete problemer.
Forholdet til anden planlægning
En lokalplan må ikke være i strid med kommune- og anden overordnet planlægning.
Hvis en lokalplan ikke er i overensstemmelse med kommuneplanen kræver lokalplanens vedtagelse en ændring af kommuneplanen. Dette kan ske ved at udarbejde et tillæg til kommuneplanen. Kommuneplantillæg er også omfattet af en lovbestemt procedure.
Såfremt forhold ikke er reguleret i lokalplanen, gælder de almindelige bebyggelsesregulerende bestemmelser i byggeloven og planloven.
Dispensation
En lokalplan i byzone kan kun ændres ved, at der udarbejdes en ny lokalplan. Man har dog mulighed for at søge en dispensation fra lokalplanens bestemmelser. En dispensation forudsætter, at der er tale om mindre væsentlige lempelser af lokalplanens bestemmelser, og at det ansøgte ikke strider mod hovedprincipperne i planen.
Borgernes deltagelse
Gennemførelse af en lokalplanprocedure er en del af den demokratiske proces, der sikrer kommunens borgere indsigt og mulighed for indflydelse på den løbende planlægning, der foregår i kommunen.
Derfor skal alle lokalplaner være fremlagt i mindst 4 uger som udgangspunkt, inden planen kan vedtages endeligt af Kommunalbestyrelsen. Ved lokalplanforslag af mindre betydning kan den offentlige fremlæggelse sættes til 2 uger.
Plandata.dk
Når kommunen har vedtaget en lokalplan, bliver den indberettet på Plandata.dk.
Plandata.dk er et digitalt system og register, der dels indeholder oplysninger om gældende planer, der er tilvejebragt efter reglerne i planloven, dels stiller planerne til rådighed på internettet.
Lokalplanens opbygning
En lokalplan består oftest af tre dele: En redegørelse, en række bestemmelser og et sæt kortbilag og eventuelt andre bilag.
Redegørelsen indeholder:
- En kort beskrivelse af lokalplanens hovedindhold
- En beskrivelse af lokalplanens forhold til anden planlægning for området, relevant lovgivning samt miljøforhold, forsyning m.v. Hensigten er at beskrive forhold, der har indflydelse på udformningen af de efterfølgende bestemmelser.
- En redegørelse for lokalplanens midlertidige retsvirkninger (lokalplanforslaget).
Lokalplanens bestemmelser gør skridt for skridt rede for, hvad der er bindende for de ejendomme, planen gælder for og dermed, hvad der bliver tinglyst på de enkelte ejendomme. Det gælder lokalplanens formål, lokalplanens område, hvad ejendommene må anvendes til, bebyggelsesregulerende bestemmelser osv. samt lokalplanens rets-virkninger.
Lokalplanens kortbilag understøtter og præciserer lokalplanens bestemmelser og findes bagest i lokalplanen.
Lovgrundlag
Proceduren for at vedtage en Lokalplan fremgår af lov om planlægning (LBK nr. 1157 af 1. juli 2020)
Lokalplanområdet
Lokalplanområdet er beliggende i den østlige del af Kalundborg, nord for Holbækvej mellem Klosterlunden og landsbyen Kåstrup på grænsen til det åbne land. Området udgøres af matr.nr. 11e samt del af 2b, 3c og 11ad alle Kåstrup, Kalundborg Jorder.
Lokalplanen omfatter et areal på ca. 14,5 ha og området fremstår i dag som udyrkede marker med enkelte spredte beplantningsgrupper og små lavninger i form af søer og moser. I den sydøstlige del af området er en enkelt beboelse i form af en landejendom. Ejendommen vil blive nedrevet i forbindelse med udbygning af området.
Området skråner naturligt fra kote ca. 17 i øst til kote ca. 8 (DVR90) langs områdets vestlige grænse og fra kote ca. 12 nord til ca. kote 10 i syd. Området er letbølget med en række naturlige lavninger, herunder med en større lavning i den sydlige del af lokalplanområdet. Lavningen strækker sig ud over lokalplanafgrænsningen til boliger syd for, langs Holbækvejs nordside. Den nuværende vejadgang til området sker via Klosterlunden.
Lokalplanområdets omgivelser
Planområdet afgrænses mod nord og øst af det åbne land. Mod vest grænser lokalplanområdet op mod en dagligvarebutik og Klosterlunden, som er en mindre vej med tilkobling til Lupinvej. Ved lokalplanområdets nordvestlige afgrænsning ligger et større kolonihavehusområde. Mod syd grænser området op til den eksisterende boligbebyggelse og kolonihavehuse ved Holbækvejs nordside.
Det er intentionen, at området øst for lokalplanområdet på sigt ligeledes inddrages til bymæssig bebyggelse.
Området indgår som en del af et større samlet boligområde under udvikling i Kalundborg Øst med afsæt i en dispositionsplan, der indgår i udviklingsbeskrivelsen i Kalundborg Kommuneplan.


Lokalplanplanområdet og dets omgivelser