Den overordnede disponering af lokalplanområdet tager udgangspunkt i visionen om at udvikle et grønt byområde på grundlag af områdets eksisterende terræn, bevoksning og vådområder, og hvor der arbejdes med rækkehuse og dobbelthuse, som adskilles af grønne strøg og inddeler området i små overskuelige boligenklaver. En stamvej udgør rygraden i området, hvorfra mindre boligveje løber ud i området, så der sikres et trygt og overskueligt vejforløb.
Området disponeres ud fra fokus på beplantning og på vandhåndtering, og hvor områdets østlige del udgøres af et større grønt areal, med moser, søer og krat. I områdets sydlige del disponeres med et større regnvandsbassin.
Små stisystemer forgrener sig i området, så der sikres sammenhæng og fællesskab mellem boligerne og hvor områdets beboere får direkte adgang til områdets natur og grønne friarealer.
I området gives mulighed for tæt-lav bebyggelse i op til 2 etager. Muligheden for 2 etagers boliger sker langs områdets stamvej og ved områdets højdepunkter, så det bakkede terræn markeres. De resterende boliger opføres i 1 etage, de placeres i den sydlige del af området ved parcelhusene mod Holbækvej og op mod de eksisterende kolonihavehuse.
Zoneforhold
Lokalplanområdet er beliggende i landzone, og bliver ved lokalplanens endelige vedtagelse overført til byzone.
Områdets anvendelse
Lokalplanområdet må kun anvendes til boligformål som helårsbeboelse med tilhørende infrastrukturelle anlæg som stier, vej- og parkeringsarealer samt grønne områder med mulighed for fælles ophold og regnvandsbassiner.
I forhold til boligbebyggelsen udlægger lokalplanen området til tæt-lav boligbebyggelse i form af rækkehuse og dobbelthuse i én og to etager.
Udstykning
For at sikre at området indrettes i overensstemmelse med lokalplanens overordnede intentioner fastlægges et vejledende udstykningsprincip for tæt-lav bebyggelsen. Ingen grund til tæt-lav bebyggelse må udstykkes med et areal på mindre end 225 m2 eller større end 500 m2. Til den enkelte tæt-lav boliggrund må der til grundstykkets areal medregnes andel i selvstændigt matrikulerede fælles friarealer. Det betyder at der til hver boliggrund må tillægges udmatrikulerede fælles friarealer, så den enkelte boliggrund kan opnå en samlet grundstørrelse på maks. 500 m2. En andel af fælles friarealer kan medregnes jf. Bygningsreglementets bestemmelser.
Der kan ske selvstændig udstykning af fælles friarealer, veje, regnvandsbassiner, tekniske anlæg o. lign.
Vej-, sti- og parkeringsforhold
Lokalplanen udlægger areal til nye veje og stier. Der skal etableres adgangsvej til lokalplanområdet fra Lupinvej via en stamvej, som skal udlægges i min. 14 m bredde med en kørebanebredde på min. 6 m og med etablering af både fortov og cykelsti. Vejadgangen til Lupinvej skal sikres via en udbygningsaftale med Kalundborg Kommune.
Fra stamvejen forgrener en fordelingsvej og herfra mindre boligveje sig ud i området, så der sikres et trygt og overskueligt vejforløb. Fordelingsvejen skal udlægges i min. 10,5 m bredde og anlægges med kørebanebredde i min. 5,5 m og etablering af fortov i den ene side på min. 1,5 m. Boligvejene skal udlægges i en min. 8,5 m bredde og anlægges med kørebanebredde på min. 5,5 m. Boligveje skal etableres til trafik med en hastighed på 30/40 km/t med hastighedsdæmpende foranstaltninger i form af hævede flader, som skal indgå som små torvedannelser i området.


Princip for henholdsvis stamvej (øverst) samt fordelingsvej og boligvej (nederst)
Der udlægges parkeringspladser til tæt-lav bebyggelsen i overensstemmelse med kommuneplanens parkeringsnorm. Det sikres således, at der etableres parkeringspladser til dækning af boligområdets behov.
Parkering til tæt-lav boligerne sker i en kombination mellem parkering på egen grund og på mindre fælles parkeringspladser til områdets boliger. Fælles parkeringspladser skal anlægges helt eller delvist med græsarmering, så parkeringsarealerne kan fremstå grønne og frodige for at understøtte områdets grønne identitet.
Der er udlagt stisystemer rundt i området, så områdets beboere kan bevæge sig til fods ud i områdets natur og så der sikres sammenhæng mellem de enkelte boligenklaver. Med stisystemet tiltænkes ligeledes en kobling til Holbækvej i områdets sydøstlige hjørne, ligesom at det fortsat vil være muligt at gå fra kolonihavehusområdet nordvest for lokalplanområdet til Gåsetoftevej ad stisystemet
Bebyggelsens omfang og placering
Lokalplanen muliggør tæt-lav boligbebyggelse. Størstedelen af husene må opføres i maks. 1 etage i op til 7,5 m. mens en mindre del langs områdets stamvej centralt i området må opføres i maks. 2 etager i op til 8,5 m. Muligheden for 2 etagers boliger sker langs områdets stamvej og ved områdets højdepunkter, så det bakkede terræn markeres.
Boligbebyggelse skal placeres inden for fastlagte byggelinjer, så placering af boligbebyggelsens facader fastlægges i passende afstand til områdets veje. Byggelinjerne på boliggrunde ved de interne boligveje definerer placeringen af boligernes ankomstfacade, mens byggelinjer på boliggrunde langs områdets stamvej definerer boligernes bagfacade. Mindst et punkt på hver facade skal placeres i byggelinje. Med udlæg af byggelinjer og bestemmelser om, at der ikke må etableres overkørsler fra boliggrunde til stamvej sikres at boligerne orienteres mod boligvejene og at stamvejen gøres facadeløs.
Inden for den enkelte grund til tæt-lav bebyggelse må højst opføres 150 m2 boligbebyggelse og højst 20 m2 sekundær bebyggelse i form af skure, depoter, drivhuse o. lign. samt én carport. For at sikre overensstemmelse med kommuneplanrammens bestemmelser om en bebyggelsesprocent på maks. 30 for den enkelte grund til tæt-lav bebyggelse må til grundstykkets areal medregnes en del af selvstændigt matrikulerede fælles friarealer.
Der må indrettes maks. 152 boligenheder inden for lokalplanområdet.
Bebyggelsens ydre fremtræden
Generelt skal ny boligbebyggelse have ydervæg i blank murværk eller som pudset/vandskuret overflade. Mindre bygningsdele som f.eks. kviste, karnapper, vinduesfelter og indgangspartier må udføres i andre materialer. Mur skal udføres i gule, røde, brune, varm grå og sorte nuancer fra jordfarveskalaen. Facader i træ kan males i farve indenfor jordfarveskalaen eller opretholdes i træets naturlige farve. Lokalplanen regulerer disse farver til bebyggelsen for at sikre, bebyggelsen står afdæmpet i dets omgivelser. Ren hvid må ikke anvendes af hensyn til den visuelle påvirkning af den landskabelige værdi.
Tæt-lav boligbebyggelse må opføres med ensidig taghældning på mellem 3° og 20° eller som saddeltag på mellem 20° og 50° hældning uden valm. Tagbeklædningen skal være af teglsten eller betontagsten i rød, brun, gul, grå eller sort farve eller med tagpap i en sort eller grå farve. Tage på udhuse/depotrum skal beklædes med sort/grå tagpap. Undtaget er drivhuse.
Tage må for alt bebyggelse ikke beklædes med kobber- og bly tage inkl. zink tagrender af hensyn til natur og grundvand.
Mindre sekundære bygninger som carporte, udhuse o.lign. skal udføres med fladt tag, ensidig taghældning op til 5° eller skal følge boligens taghældning, så der sikres sammenhæng mellem hovedhus og sekundær bebyggelse. Tage på udhuse/depotrum skal beklædes med sort/grå tagpap og facader skal udføres i træ som ”1-på-2” beklædning eller som klinkbeklædning, som males sort. Undtaget herfor er drivhuse, som må opføres i glas. Carporte må udføres med synlige stålsøjler som bærende stolper.
Lokalplanens boligbebyggelse opføres i mindre boliggrupper, hvor variation i bebyggelsen skal sikre, at hver boliggruppe fremstår med hver sin identitet. Dette indebærer, at boliger indenfor hver boliggruppe skal opføres med ens facadeudtryk og ens farve på tagmaterialer. Tilgrænsende boliggrupper skal adskille sig fra hinanden. Qua områdets størrelse sikres, at området fremstår som små enheder i en større sammenhæng.
Ubebyggede arealer, beplantning og hegning
Lokalplanen ligger i dag i naturskønne omgivelser. Området bærer præg af anvendelse til landbrugsformål, men rummer samtidig muligheder for mange gode naturoplevelser. Derfor er det lokalplanens intentioner at forstærke naturen gennem etablering af grønne arealer med fokus på klima, beplantning og biodiversitet.
Eksisterende hegn skal bevares i lokalplanen og det skal sikres at ny beplantning skal være egnstypiske og hjemmehørende arter, så beplantning falder naturligt ind i områdets visuelle karakter. Der skal plantes frugttræer- og bærbuske som eksempelvis skov-æble, alm. røn, alm. hyld, hassel, hvidtjørn, kræge, navr, alm. eg o. lign. spredt i området og der skal etableres levende hegn både i lokalplanområdets nordlige og vestlige afgrænsning samt ved de enkelte tæt-lav grundene. Hegnsbeplantning som omkranser haveanlægget ved eksisterende bolig videreføres i det nye boligområde, så der sker en kobling til områdets historie. Beplantningen skal være med til at sikre spredningsmulighed for vilde dyr og planter samt opretholde og forbedre den eksisterende naturværdi i området.
I området skal indrettes små torvedannelser i kombination med hævede flader på boligveje. Torvedannelserne skal indrettes med mulighed for ophold og begrønnes med eksempelvis græsser, trædesten, buske og træer. Torvedannelserne skal udgøre et uformelt mødested, hvor der er mulighed for afslappet ophold og hvor man kan følge med i det omkringliggende byrum.
I de små intime "lommer" tæt på beboelserne skal indrettes små lokale lommeparker, som kan etableres med eksempelvis bålplads, legeplads, højbede og nyttehaver, som kan understøtte det mere formelle ophold.
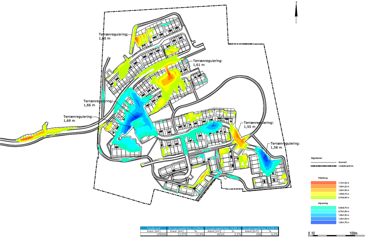
Af hensyn til opretholdelse af landskabets naturlige letbølget karakter indeholder lokalplanen en vejledende plan for principperne for terrænregulering. Som en del af landskabets udformning er det lokalplanens intentioner, at der sikres mulighed for, at regnvandsbassinet må bearbejdes, så det fremstår naturligt med bløde former og øger den rekreative værdi for området.


Illustration af mulig indretning af torvedannelser
Lokalplanen giver mulighed for terrænregulering i forbindelse med byggemodning af området. Der er udarbejdet en terrænregulerings model i forbindelse med lokalplanen. Der terrænreguleres som udgangspunkt til etablering af områdets veje, boliger, mens de støre grønne fællesarealer fortsat vil fremstå med eksisterende naturligt terræn. Herudover vil der ske terrænregulering til områdets regnvandshåndteringsløsninger. Den maksimale terrænregulering vil være ca. 1,7% og 0,2% af terrænreguleringen vil være over 1,5 m.
Efter byggemodning af området fastsætter lokalplanen mulighed for terrænregulering på +/- 0,5 m.


Princip for terrænregulering i forbindelse med byggemodning
Grundejerforening
Der skal oprettes en grundejerforening med medlemspligt for samtlige ejere inden for lokalplanens område.
Grundejerforeningen kan opdeles i mindre grundejerforeninger.
Grundejerforeningen oprettes senest 3 mdr. efter den første boliggruppe er taget i brug.
Den enkelte grundejerforening skal varetage drift og vedligehold af private fællesveje og fælles grønne arealer, stier, beplantningsbælter, fælles hække og afskærmende foranstaltninger mv. inden for den enkelte grundejerforenings område.
Grundejerforeningen har desuden den grønne drift af anlæg til håndtering af ekstremregn, samt åbne regnvandsgrøfter og render mv.
Det er jordejeren, der udstykker lokalplanområdet, som varetager drift og vedligeholdelse indtil en grundejerforening er oprettet.
Grundejerforeningernes vedtægter og ændringer heri skal godkendes af Kalundborg Kommune.