
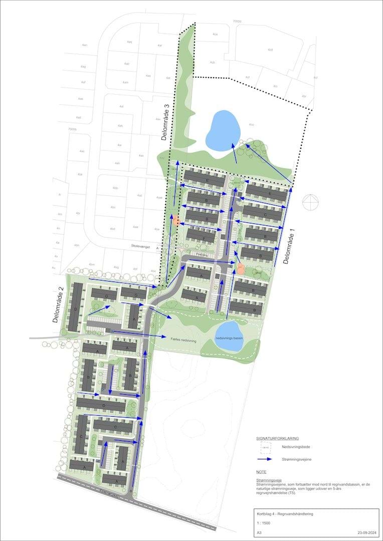
Kortbilag 4 - Regnvandshåndteringsplan

Kortbilag 4 - Regnvandshåndteringsplan
Forslagsdato:
26-06-2024
Høringsperiode:
28-06-2024 - 14-08-2024
Vedtagelsesdato:
18-09-2024
Ikrafttrædelsesdato:
27-09-2024
Planens status:

Kortbilag 4 - Regnvandshåndteringsplan

Kortbilag 4 - Regnvandshåndteringsplan